
++++*** BITTE BEACHTEN Wir befinden uns vom 19.12.25 - 08.01.2026 im Weihnachtsurlaub. Emails werden in dieser Zeit nicht beantwortet. Am 09.01 sind wir wieder für Sie da und arbeiten alle Emails und Anfragen ab. Wir wünschen Ihnen schöne Feiertage***++++
Etagenwohnung im 13. Obergeschoss.
Ausstattung
Aufzug vorhanden
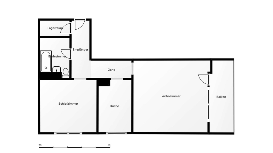
Wohnfläche: ca. 60 m²
Zimmer: 2 Zimmer
Küche: Kleine Küchenzeile möglich; Anschlussmöglichkeiten vorhanden
Bad: mit Wanne; Potenzial für individuelle Gestaltung
Böden: Teppichboden in Küche/Bad/Flur und Wohnzimmer; nachträglich eingebaute Podeste(Holz) in Küche und Schlafzimmer
Fenster: Doppeltverglaste Fenster; gute Lichtverhältnisse.
Heizung: Zentralheizung.
Balkon: Vorhanden, einmalige Aussicht auf Frankfurt und Umland
Keller/Abstellraum: Im Gebäude vorhanden, ein Abstellraum in der Wohnung vorhanden
Raumaufteilung
Wohnzimmer: Großzügiger Raum mit Zugang zum Balkon
Schlafzimmer: Ruhig gelegen, ausreichend Platz für Doppelbett und Kleiderschrank
Küche: Funktional, Platz für Einbaugeräte
Bad: Bad mit Badewanne; Anschlussmöglichkeiten für Waschmaschine
Einzugstermin flexibel
Sehr gute Verkehrsanbindung (Bus/Tram/S-Bahn in der Nähe)
Einkaufsmöglichkeiten, Ärzte, Schulen in fußläufiger Entfernung
Sehr gute Gelegenheit für Selbstnutzer oder als Kapitalanlage
Etagenwohnung im 13. Obergeschoss
Ausstattung
Aufzug vorhanden
Wohnfläche: ca. 60 m²
Zimmer: 2 Zimmer
Küche: Kleine Küchenzeile möglich; Anschlussmöglichkeiten vorhanden
Bad: mit Wanne, Potenzial für individuelle Gestaltung
Böden: Teppichboden(alt) in der gesamten Wohnung
Fenster: Doppeltverglaste Fenster;
Heizung: Zentralheizung.
Balkon: Vorhanden, einmalige Aussicht auf Frankfurt und Umland
Keller/Abstellraum: Ein Abstellraum ist in der Wohnung vorhanden+Kellerraum
Raumaufteilung
Wohnzimmer: Großzügiger Raum mit Zugang zum Balkon;
Schlafzimmer: Ruhig gelegen, ausreichend Platz für Doppelbett und Kleiderschrank
Küche: Funktional, Platz für Einbaugeräte
Bad: Bad mit Badewanne;
Einzugstermin flexibel
Sehr gute Verkehrsanbindung (Bus/S-Bahn in der Nähe)
Einkaufsmöglichkeiten, Ärzte, Schulen in fußläufiger Entfernung
Sehr gute Gelegenheit für Selbstnutzer oder als Kapitalanlage
Bieterverfahren – So funktioniert der Kaufprozess da aus einer Nachlassverwertung siehe auch Martinbode.auction
Diese Immobilie wird im Bieterverfahren angeboten. Das bedeutet, dass Interessenten innerhalb eines festgelegten Zeitraums ein Kaufangebot abgeben können. Dabei handelt es sich nicht um eine klassische Auktion, sondern um ein transparentes Verfahren, bei dem Sie selbst entscheiden, welchen Betrag Sie bieten möchten.
Ablauf des Bieterverfahrens:
Besichtigung: Sie haben die Möglichkeit, die Immobilie zu besichtigen und sich einen persönlichen Eindruck zu verschaffen.
Gebotsabgabe: Nach der Besichtigung geben Sie Ihr Kaufangebot innerhalb der festgelegten Frist schriftlich ab.
Auswahl des Käufers: Der Verkäufer prüft alle Gebote und entscheidet, ob und an wen die Immobilie verkauft wird. Er ist nicht verpflichtet, das höchste oder irgendein Gebot anzunehmen.
Notarielle Beurkundung: Kommt es zur Einigung zwischen Verkäufer und Käufer, wird der Kaufvertrag notariell beurkundet.
Ihre Vorteile als Käufer:
✅ Sie bestimmen Ihr Gebot selbst.
✅ Kein sofortiger Kaufzwang – Ihr Gebot ist unverbindlich, bis eine Einigung erzielt wird.
✅ Fairer und transparenter Verkaufsprozess.
Haben Sie Interesse? Dann vereinbaren Sie gerne einen Besichtigungstermin und nehmen Sie am Bieterverfahren teil!
Lage: Zentrale, gut angebundene Wohnlage im Stadtteil Bornheim.
Verkehrsanbindung: Gute Anbindung an ÖPNV (Buslinien in der Nähe; schnelle Erreichbarkeit der Straßenbahn bzw. U-Bahn-Stationen in der Umgebung möglich). Schnellstraße in Richtung Innenstadt sowie Autobahnzugänge in wenigen Minuten erreichbar.
Infrastruktur: Vielfältige Einkaufsmöglichkeiten (Supermärkte, Apotheken, Bäcker, Fachgeschäfte) in unmittelbarer Umgebung; gemischte Wohn- und Gewerbenutzung mit zahlreichen Dienstleistern.
Freizeit und Erholung: Grünflächen und Parks in der Nähe sowie Spielplätze; familienfreundliche Umgebung mit Möglichkeiten zum Joggen oder Spazierengehen.
Bildung und Soziales: Kindertagesstätten, Grundschulen und weiterführende Schulen im Umfeld; gute Anbindung an Bildungs- und Freizeiteinrichtungen.
Umfeld: Vorortcharakter mit guter Siedlungsstruktur, dennoch kurze Wege in die Frankfurter Innenstadt; ruhiges Wohnumfeld mit guter Durchmischung von Wohn- und Geschäftsflächen.
Besonderheiten: Nähe zu Verkehrsknotenpunkten und urbanem Angebot.
Flughafen 23,84 km | Fernbahnhof 4,57 km | Autobahn 9 km
Die dargestellte Position der Immobilie ist nur eine ungefähre Angabe.